︎
en
/
rs
Cerovo Vojni Kompleks
Poliklinika Dr Zejnilović
Edukativno-konferencijski centar
Butik hotel i hostel na Žabljaku
Pešački most i poslovno-ugostiteljski objekat
Diplomatsko-konzularno predstavništvo Republike Srbije
Sadine u Podgorici - urbanističko-arhitektonsko rješenje
Paviljon Brazila za Expo 2020
Izložbeni mobilijar MSUB
Stan na Novom Beogradu
Urbanističko-arhitektonsko rešenje za šire područje Hipodroma
Paviljoni za društvo i prirodu
CCEE Cabo Frio
Rekonstrukcija Muzeja Slika i Zvuka
Muzej grada Beograda
Tri centralna trga u Beogradu
Hotelski kompleks u Miločeru
Kompleks socijalnog stanovanja u Kamendinu
Hotel Luštica
Hotel Golden Bay Bar
Studentski dom Sao Paulo
Konkurs za rekonstrukciju Stare škole
Stan u Parizu
Multifunkcionalni element u Salonu MSUB
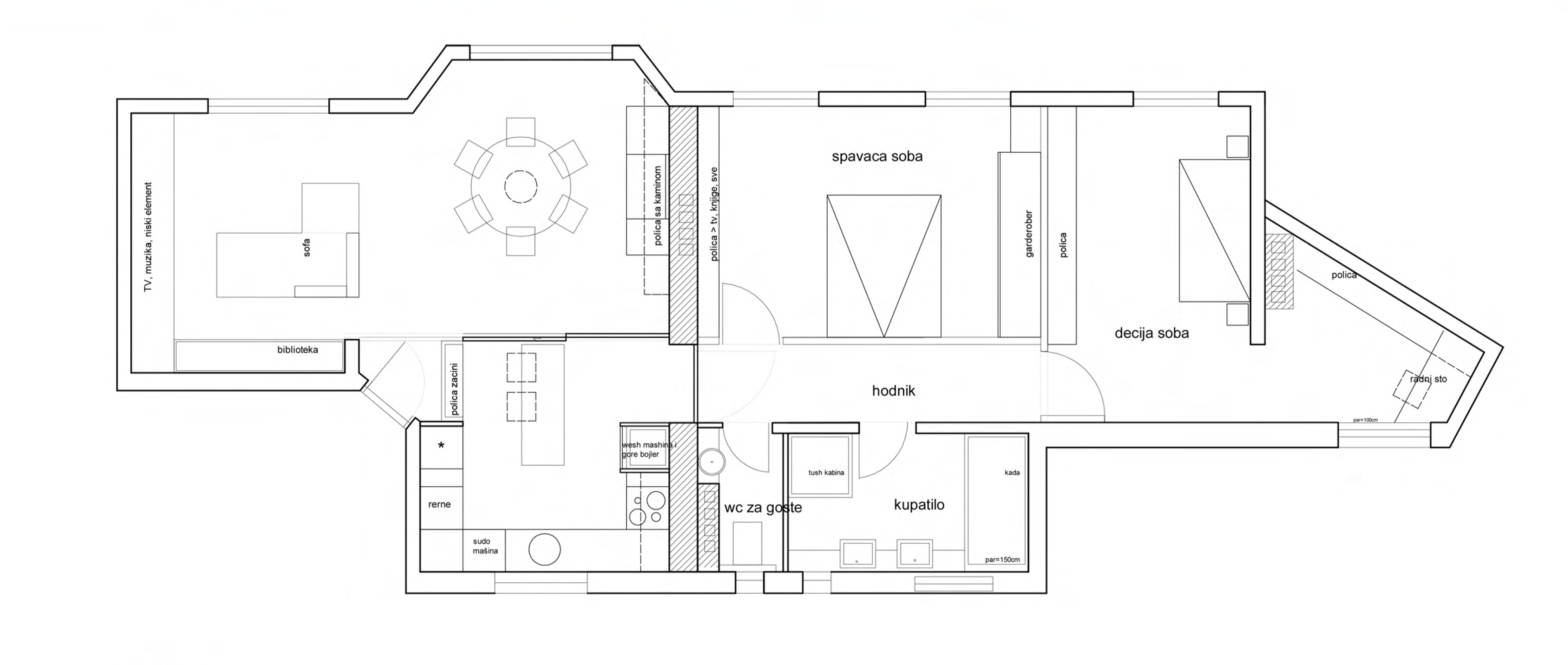
Stan u Podgorici
Univerzitetski kompleks Cetinje
Restoran Green City
Vesti
O Nama
Stan u ulici Dr. Arnold Netter
︎ 2011. Pariz, Francuska
autori: Milena Kordić, Enes Muftić
SOBA