︎
en
/
rs
Cerovo Vojni Kompleks
Poliklinika Dr Zejnilović
Edukativno-konferencijski centar
Butik hotel i hostel na Žabljaku
Pešački most i poslovno-ugostiteljski objekat
Diplomatsko-konzularno predstavništvo Republike Srbije
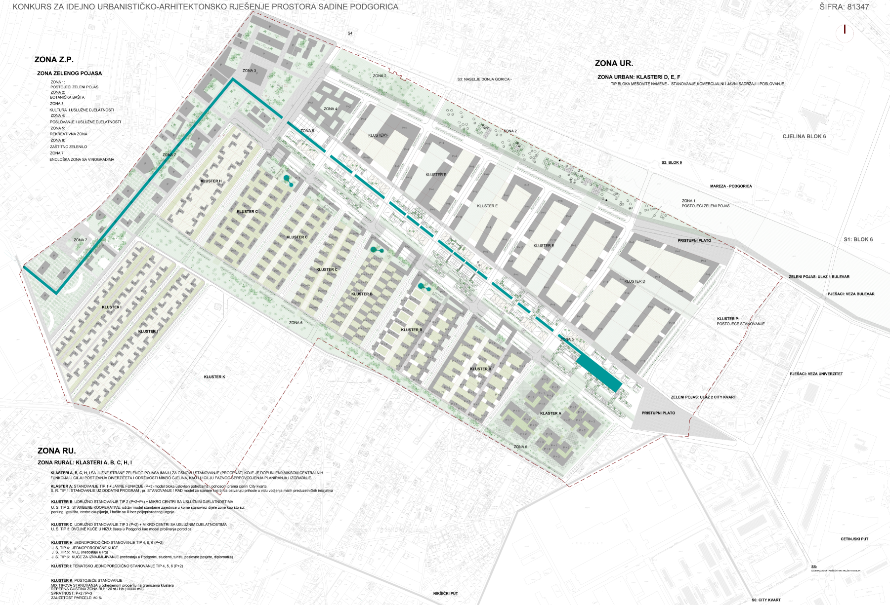
Sadine u Podgorici - urbanističko-arhitektonsko rješenje
Paviljon Brazila za Expo 2020
Izložbeni mobilijar MSUB
Stan na Novom Beogradu
Urbanističko-arhitektonsko rešenje za šire područje Hipodroma
Paviljoni za društvo i prirodu
CCEE Cabo Frio
Rekonstrukcija Muzeja Slika i Zvuka
Muzej grada Beograda
Tri centralna trga u Beogradu
Hotelski kompleks u Miločeru
Kompleks socijalnog stanovanja u Kamendinu
Hotel Luštica
Hotel Golden Bay Bar
Studentski dom Sao Paulo
Konkurs za rekonstrukciju Stare škole
Stan u Parizu
Multifunkcionalni element u Salonu MSUB
Stan u Podgorici
Univerzitetski kompleks Cetinje
Restoran Green City
Vesti
O Nama
Sadine u Podgorici - urbanističko-arhitektonsko rješenje
︎ 2018. Podgorica, Crna Gora, Konkurs / Otkup
autori: Andjelka Badnjar Gojnić, Marija Krsmanović Stringheta, Milena Kordić
saradnici: Pavle Kostić, Nazish Khan
SOBA